Plans du Gîte

Organisation des différents espaces

Retour au Gîte

Disposition des pièces

Vous trouverez ci-dessous les plans détaillés des différents niveaux du gîte. Pour connaître le détail exact des lits par chambre, vous pouvez consulter la page détail des chambres.

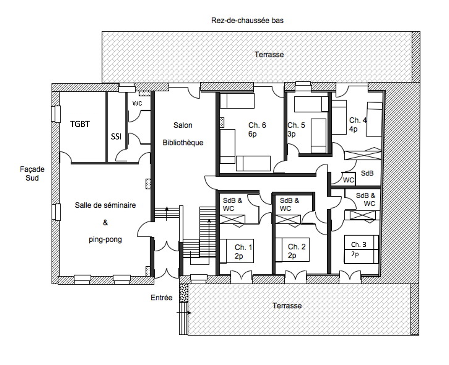
Rez-de-Chaussée (Bas)

Accès principal, Salon, salle de jeu, salle de séminaire, Chambres du rez-de-chaussée.

Plan RDC Bas

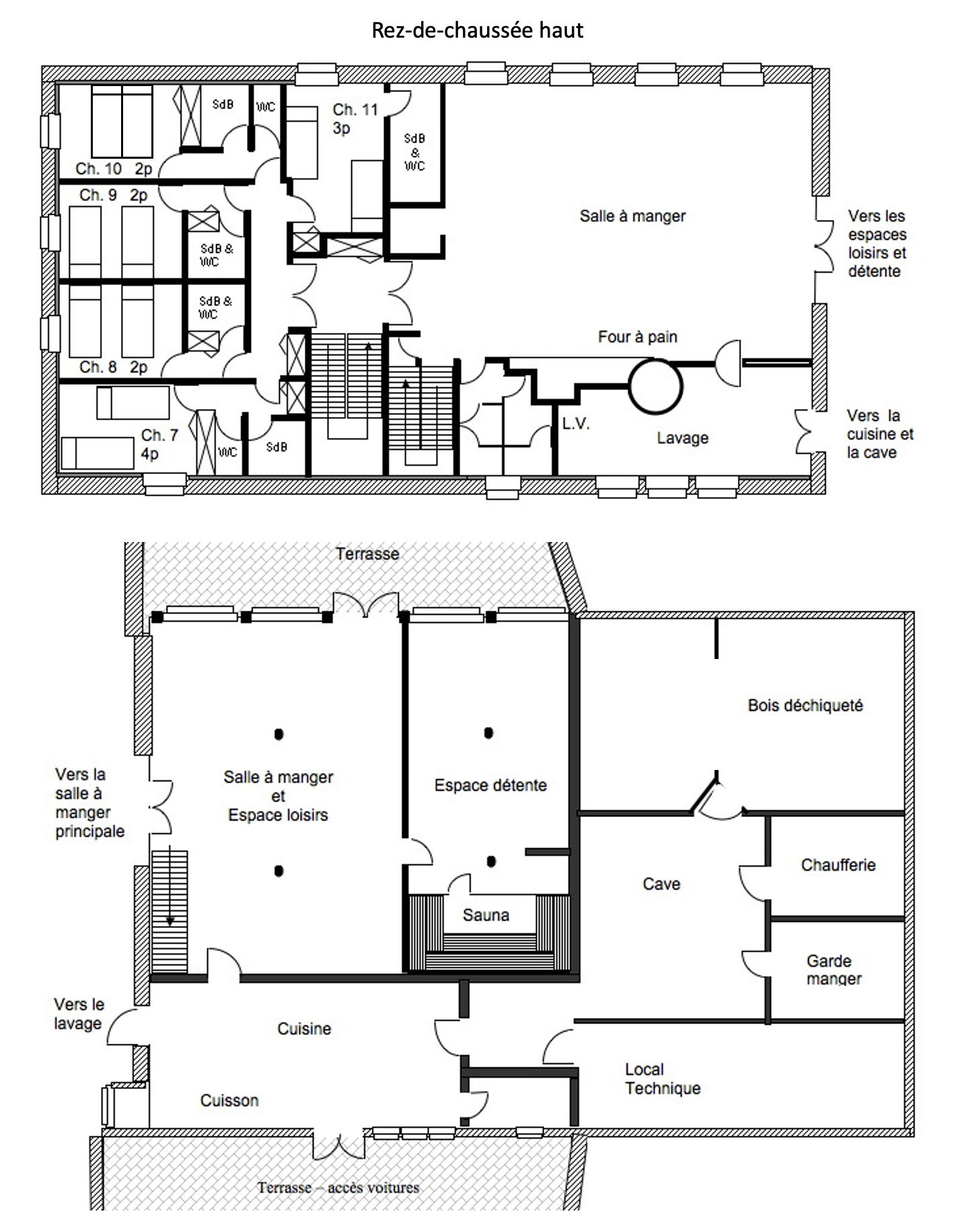
Rez-de-Chaussée (Haut)

Espaces de vie : Chambres, cuisine, Grande Salle à manger principale et espace loisirs, sauna.

Plan RDC Haut

L'Étage

Chambres et mezzanine de la salle à manger. Salle de yoga / dojo.

Partie 1

Plan Etage Partie 1

Partie 2

Plan Etage Partie 2
Retour à la présentation du Gîte