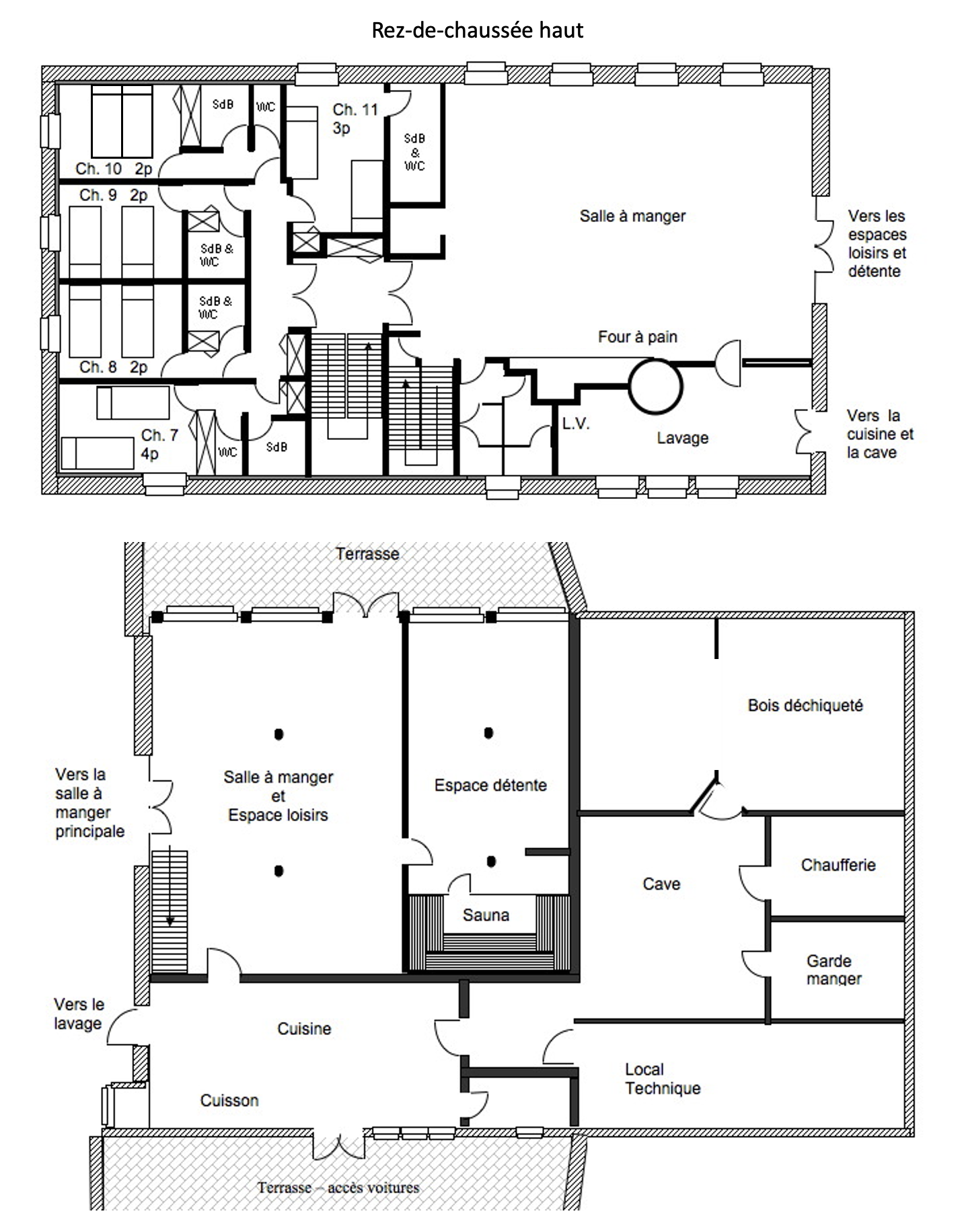
Plans
Voici les plans du gîte, étage par étage.
Le nombre de couchages est indiqué pour chacune des chambres.
Here are the plans of the gite. Sorry it is in french...
For each room, the number of persons is indicated.


Etage / second floor
étage (seconde partie) / second floor (second part)
